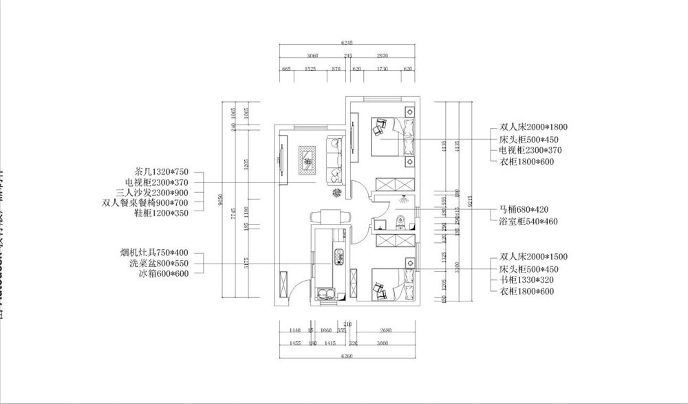
从入户门位置进入,首先是玄关,比较长,浪费空间,然后就是客餐厅,客厅沙发和影视墙都是整墙,方便布局,但留给餐厅的位置比较小,只能选用小的桌子,过道右手边是厨房,推拉门隔开,因为门对着过道,所以餐厅使用不是特别方便,主卧紧挨着客厅,次卧挨着厨房,卫生间在主卧次卧中间,使用很方便,所有空间都有窗户,属于全明户型,能够保证居住时充分采光和透气。

沙发背景墙挂画搭配整体色彩起到装饰作用,布艺沙发,暖色系地砖,与墙面颜色相搭的窗帘,使整个空间看起来很温馨。

空间方正,有落地窗,采光好,户型比较小,整体以简约为主,乳胶漆颜色搭配的浅蓝色,电视背景墙用简单的石膏线做装饰,美观大方。

背景采用的挂画做装饰,回型吊顶,暖咖色的乳胶漆,储物基本没有问题,暖色系的搭配,保证每晚都能有个舒适的睡眠。

具有良好的隐私性,很宽敞,采用实木复合地板,环保健康,室内放置两个床头柜,一米八乘两米的大床,窗帘和床颜色相搭配。

作为第二个起居活动中心,需要有充足的发挥空间,但这个户型几乎没有餐厅的位置,所以餐桌放在了客厅靠近厨房的墙面旁边。

因为位置有限,餐厅只能采用双人餐桌餐椅,整体颜色主要采用的是原木色。

本案两室一厅一厨一卫75㎡户型,业主很喜欢北欧风格,但此户型因为门对着过道,所以餐厅使用不是特别方便,再加上储物空间不是很多,还有很多细节问题需要改动。


