
这期分享的装修案例,来自台湾省台北市,室内使用面积109㎡,拥有着54年的房龄,屋主为了提高居住舒适度,进行了本次改造。装修秉承美型之下,安全至上的居住原则,采用融旧赋新的设计手法,让老房子华丽重生。
优雅自然的装修风格,比想象中漂亮多了。
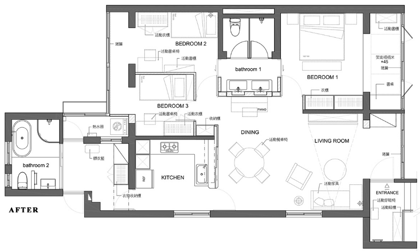
户型图


室内使用面积109㎡,整体格局变化还是蛮大的,为了拥有半开放式厨房,将厨房进行外扩,利用活动门进行隔断。三间卧室,通过设计塑造出回字形动线,提高居家舒适度。
玄关

玄关前后对比,差距还是蛮大的,一改之前的老气,深墨绿搭配水泥灰,相比之前更有疗愈感。深墨绿与窗外随风摇曳的绿植,相映成趣。墙垛加入了弧形设计,消弭了直角尖锐和生硬感。
客厅


两面采光窗的加持,让客厅并没有因为色彩的原因变得压抑,相反更优雅自然。沙发墙利用整面洞洞板进行装饰,以解决客厅大部分收纳问题,也起到一定装饰作用。取消了茶几,改用小巧灵活的边几,空间更宽敞,让小朋友在家可以自由玩耍。


深墨绿的电视墙设计,杜绝杂乱无章的造型,保持干净纯粹的清爽感。投影仪取代了电视,使用更灵活。幕布可以隐藏在木质横梁后方,一点不影响美观。
餐厅


餐厅简洁舒适,餐桌椅子选择了和洞洞板相近的色调,以实现空间格调的高度统一。简易长桌搭配两把椅子+长条凳的组合,相比四把椅子的组合更加实用,节省空间。

餐厅和厨房半开放式的设计,简直恰到好处,既可以保持空间通透感,又可以阻隔油烟。活动玻璃窗+洞洞门的设计,让空间更具灵活性。尤其是靠近厨房的洞洞门,开合之间拥有两种不同的效果。
卧室

深墨绿由玄关一直延伸到室内,保持一整面墙的统一,与沙发墙的洞洞板形成鲜明对比,一面自然,一面优雅。主卧门采用隐形门设计,以保证整体效果的美观和谐。

主卧简洁通透,有别于客厅的深墨绿色,以海军蓝作为背景色调,深邃且宁静有助于睡眠。卧室和阳台直接打通,提高空间通透与采光。褐系木质家具,不造作的质朴韵味,让空间更有自然质朴感。

阳台卧榻设计结合了书桌和收纳功能,让日常使用更舒适。衣柜依旧是褐系,直接做到顶不浪费空间。整体简洁的造型,质朴的外观,表现不造作的朴韵。
主卫


主卫横跨在卧室中间,双向开门设计,缩短动线让日常使用更便捷。主卫采用三分离式的设计,搭配双台盆的组合,极大的提高了使用的舒适性,早晚高峰期不拥挤。
次卧

次卧简洁留白设计,活动式的家具摆放,让空间拥有更多可能性。墙面以轻暖鹅黄色搭配嫩芽绿,营造温暖又富有童趣的氛围。

次卧和阳台一样,也选择了打通处理,动线流畅采光也直接。阳台半高墙做了可涂鸦设计,同时搭配木板台面和间接灯源,提高整体实用性。
客卫


将原有客卫和洗衣房做了合并处理,扩大了客卫使用面积,整体以纯白色为基调,采用大片玻璃引入日光,空间更加透润明亮。
整体规划了四件式的配置,提高了实用性。马桶和洗手台做半高隔断墙,界定功能分区也提高私密性,同时保持空间通透感。


