作者:家装札记
努力工作,是为了退休后能过上自己想要的生活。一套小房子,自己喜欢的装修风格,不被定义和束缚,自在清净活出自我。本次分享的案例来自退休老师的家,69㎡的一居室,房子不大足够居住生活。简洁的装修基调,搭配高级灰和复古绿,混搭出自然舒适的居住空间。
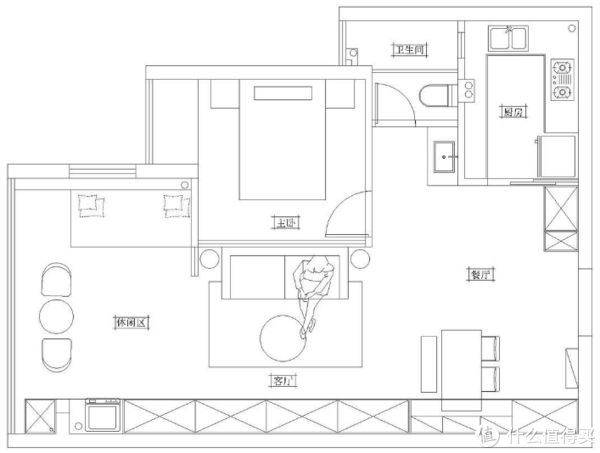
原户型图

69㎡一居室,户型缺点:内部格局比较奇葩,缺乏独立的卧室空间,阳台占用面积过大,厨房不规整,整体空间利用率不高。优点在于可操作性强,有利于后期设计规划。
装修布置图

根据用户生活习惯及户型缺点,做如下改造:
1、客厅与阳台打通,扩大空间增加通透性,同时也提高空间利用率;
2、在原有开阔的客厅空间内,隔出一间独立卧室空间,提高私密性;
3、重新规划厨房和卫生间,纳入生活阳台,让卫生间干区和厨房墙齐平,整体更美观。
客厅

改造后的客厅,拆除推拉门将客厅与阳台打通,增加了空间进深,视觉感更加通透开阔。地面采用比较保守的木色地板,鱼骨拼设计,让空间更活泼。
家具和软装上大胆运用撞色,橙色的沙发和复古绿的背景墙设计,可谓恰到好处,复古中带点时尚感。

阳台看向客餐厅,简约中略带复古的气质,整体撞色也相对比较温和,空间更显柔和优雅。一体式的吊顶设计,改善了视觉空间感,同步以轨道灯和吊灯的组合,界定功能区。

全屋收纳全部集中到客厅,整面墙都做了收纳柜,储物与电视墙结合,美观实用。现代灰门为主的门板,让空间有了色彩基础,搭配黑色长条门把手和局部镂空设计,又告别整面储物柜的单调视觉。
餐厅

餐厅简约实用,高级灰搭配沉稳黑色,营造出优雅高级感。在储物柜中间,特意腾出一面区域,摆放电视和一些餐厅用品。蓝色的椅子和复古吊灯,不动声色的演绎了复古优雅美学。
阳台


客厅与阳台虽然打通,但是巧妙的通过横梁下方的展示柜,实现功能分区效果。阳台除了满足日常洗衣、烘干和晾晒外,还可以是休闲空间。
一整套简约休闲桌椅,搭配轻柔质地的软装和绿植,不仅实现了视觉上的转换,还有功能性上的转换。
厨房

厨房门前也做了精心设计,不地板与不规则的六边形地砖拼接,实现空间的过渡。右侧做了储物柜和黑板墙设计,黑板墙记录着生活的点滴。

U型厨房设计,拥有足够宽敞的台面空间和储物空间,墨蓝色的橱柜,搭配水磨石的墙砖设计,让厨房更显小资。
卫生间

重新规划空间后,实现了干湿分离设计的卫生间。洗手台外置,让日常生活更舒适。干区清新的绿色做背景,搭配低调内敛的柜子,冷静优雅让人赏心悦目。

卫浴空间,为了保留更灵活的空间,仅以浴帘做隔断。简约的墙砖搭配复古花砖,既可以突出一些区域,又能分出层次感,增加空间趣味性。
卧室

卧室入口规划在干区一侧,绿色的墙面搭配白色的柜门,清新自然,精致时尚。

卧室空间不大,考虑到飘窗采光也有限,于是在卧室与客厅隔墙中,做了半玻璃设计,引入客厅光线,提高卧室采光效果。

收纳集中在客厅,卧室就舍弃了衣柜设计,仅摆放了衣架。整体视觉也比较柔和,白色的背景墙,搭配绿色色块,营造浪漫优雅的睡眠氛围。
如果是你,会如何装修自己退休后的住宅呢?欢迎交流探讨。


